Vorwort | Projekte | Impressum
Architekturbüro Walter Arns
       
 

Einfamilienhäuser [Projektliste]
       
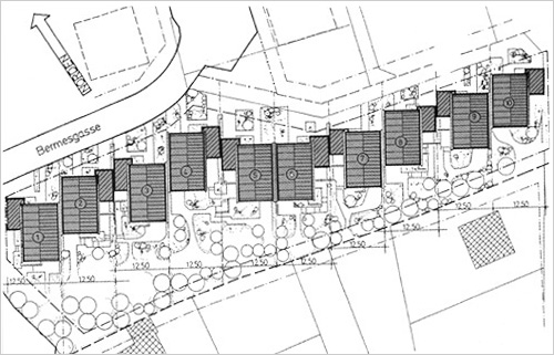
Bebauung Bermesgasse
Remscheid-Lennep, 1981
   
 
Diese Baumaßnahme gehört zu meinen Lieblingsprojekten, obwohl wir damit aus wirtschaftlicher Sicht alles andere als zufrieden sein konnten - der Aufwand für Planung und Durchführung überstieg bei weitem das veranschlagte Honorar.
Es begann damit, daß wir vom Grundstückseigentümer, Herrn Zauleck, gebeten wurden, einen Planungsvorschlag für eine angemessene Bebauung zu konzipieren. Der dazu nötige neue Bebauungsplan mußte baurechtlich durchgesetzt werden, was sich als sehr kompliziert erwies. Nach mehreren Jahren waren endlich alle Formalitäten erledigt.
Inzwischen hatte die Bauträgergesellschaft BERKA das Grundstück erworben und die einzelnen Parzellen an private Käufer weiterveräußert. Damit hatten wir nicht mehr nur eine Bauträgergesellschaft als Ansprechpartner, sondern zehn verschiedene Grundstückseigentümer, deren individuelle Wünsche bei der Erstellung der einzelnen Häuser und der Gesamtanlage berücksichtigt werden mußten.

Blick auf die Eingangsseite (Foto: Th. Arns)


Gartenfassade
(Foto: Th. Arns)


Fassadenabwicklung von der Bermesgasse aus


Blick auf die Eingangsseite (Foto: Th. Arns)


Lageplan


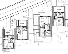
Grundriß Erdgeschoß der Häuser 1-4


Grundriß Obergeschoß der Häuser 1-4


Grundriß Untergeschoß der Häuser 1-4


Der Wohn- und Eßbereich (Foto: Th. Arns)


Der Wohn- und Eßbereich (Foto: Th. Arns)

Der Wohn- und Eßbereich (Foto: Th. Arns)