Vorwort | Projekte | Impressum
Architekturbüro Walter Arns
       
 

Wohn- und Geschäftshäuser [Projektliste]
       
Wohn- und Bürohaus Brunnengasse
Remscheid, 1982
   
 
Als Anfang der 80er Jahre die Wohnbebauung "Altstadt" entstehen sollte, konnte ich das an die Rückseite des Büros angrenzende Grundstück von der Stadt erwerben. So ergab sich nach fast zwei Jahrzehnten eine Erweiterungsmöglichkeit für unser inzwischen auf über vierzig Mitarbeiter gewachsenes Büro. Die neuen großzügigen Räumlichkeiten werden zum Teil noch heute von meinen Nachfolgern genutzt.
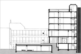
Das Gebäude schließt direkt an den rückwärtigen Flachbau der Bismarckstraße 31 an. Auch die Tiefgarage konnte nach hinten erweitert werden. Zwischen Altbau und Neubebauung entstand ein kleiner Innenhof, von dem aus ein Teil der Büroräume belichtet wird. Eine Skulptur des Bildhauers Heinz Heiber formuliert seinen gestalterischen Mittelpunkt.
Die drei Wohngeschosse über dem Bürotrakt bilden einen Kopfbau für die Wohnbebauung entlang der Brunnengasse. Die kleinen, aber geschickt zugeschnittenen 2-Zimmer-Wohnungen sind nach wie vor sehr gefragt.


Erdgeschoßgrundriss. Der Neubau in der Brunnengasse schließt an das Gebäude Bismarckstraße 31 an.


Das Gebäude von der Brunnengasse aus (Foto: Th. Arns)


Das Gebäude von der Brunnengasse aus (Foto: Th. Arns)


Schnitt durch den Kopfbau und die Tiefgarage


Grundriß Wohngeschoß


Grundriß 1. Obergeschoß