Vorwort | Projekte | Impressum
Architekturbüro Walter Arns
   
 
Wohnbebauung und Städtebau [Projektliste]
   
Wohnbebauung
Schlegel-/Schultheiss-Gelände
Bochum-Mitte, 1984
   
 
Anfang der 80er Jahre gab die Schultheiss-Brauerei ihren Standort in Bochum auf; das Brauereigelände, direkt im Stadtzentrum gelegen, wurde zur Bebauung frei. Die Stadt suchte nach Konzepten für die neue Verwendung des Areals und lobte dazu einen Investoren-Wettbewerb aus.
Wir schlugen eine Wohnnutzung in Form einer klassischen Blockrandbebauung vor; da die umliegenden Straßen zum Teil stark befahren waren, sollten die Wohnungen zum begrünten Innenbereich des Blocks hin orientiert werden.
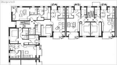
Unser Konzept setzte sich schließlich durch und wurde ausgeführt, nachdem wir auf Wunsch der Bauträger und des Stadtplanungsamts unsere gestalterische Linie den Vorstellungen des Zeitgeists angenähert hatten: in der Endfassung präsentiert sich die Bebauung als eine Reihung viergeschossiger Giebelhäuser. Die Grundrißaufteilung ermöglicht das "Durchwohnen": Wohn- und Eßbereich bilden einen zusammenhängenden Raum, der von der einen zur anderen Gebäudeseite durchgeht.


Modell des ursprünglichen Konzepts


Lageplan

 

 


Der Innenhof


Entwurfsskizze

 
Blick auf die Wohnbebauung vom Westring
 
 
Ansicht
 
 
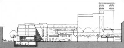
Schnitt
 
 
Grundriß Obergeschoß
 
 


Grundriß Erdgeschoß