Vorwort | Projekte | Impressum
Architekturbüro Walter Arns
       
 

Schulen, Kindergärten, Jugendzentren [Projektliste]
       
Sporthalle Neuenkamp
Remscheid, 1969
   
 

Bei der Konzeption der Gewerbeschule war es bereits vorgesehen, auf dem angrenzenden städtischen Grundstück an der Neuenkampener Straße eine zentrale Sporthalle für die umliegenden Schulen und für lokale Vereine zu entrichten.
Es vergingen jedoch einige Jahre, bevor wir dieses Projekt in Angriff nehmen konnten.
Von außen stellt sich die Halle als schlichter, geschlossener Kubus dar. Ein großes, nach Norden gerichtetes Shed versorgt den Raum mit Tageslicht. Der Eingang für das Publikum liegt auf der Hangseite und führt auf eine erhöht liegende Galerie entlang des Spielfelds, von der aus auch die Sitzplätze der Schiebetribüne zugänlich sind.
Die eigentliche Hallenfläche liegt ein Geschoß tiefer, ebenso die Nebenräume für die Sportler, die in einem flachen Vorbau zur Neuenkampener Straße untergebracht sind..


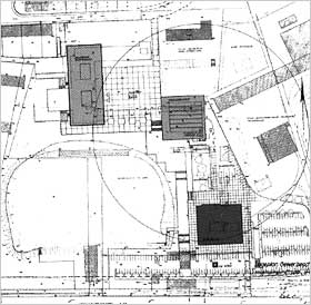
Lageplan mit Sporthalle (dunkel gezeichnet) und der Gewerbeschule
 


Blick auf die Sporthalle von der Neuenkamper Straße aus, Aufnahme kurz nach der Fertigstellung
Die Hallenfläche läßt sich in drei nebeneinanderliegende Spielfelder teilen (Dreifach-Turnhalle).
Auf den Tribünen haben 730 Zuschauer Platz.
Südansicht (rechts oben ), Westansicht (rechts mitte ), Grundriß (rechts unten)

Alle Fotos von H. Grempel